Projects
Collections
furniture
objects
rugs
studio | showroom
Contact
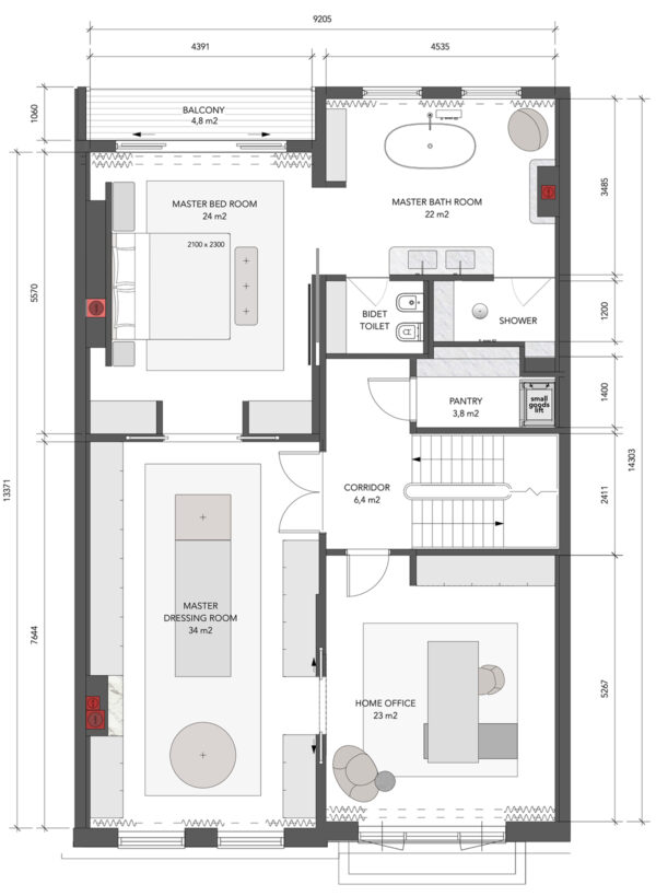
Townhouse
Visuals by RVO Design
previous